The Daily Insight

Connected.Informed.Engaged.

updates

What is an interior elevation

Written by Emma Jordan — 0 Views

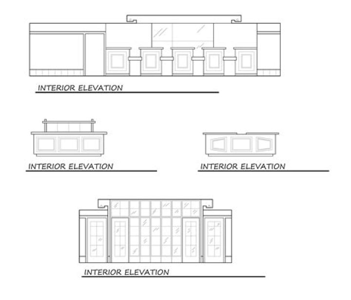
An interior elevation is a vertical projection of a wall or other surface inside a building.

What does elevation mean in design?

An “elevation” is a drawing that shows the front or side of something. A floor plan, by contrast, shows a space from above – as if you are looking down on the room from the ceiling. Thus, you see the tops of everything, but you cannot view the front, side or back of an object.

What is a elevation view?

This is an elevation view. An elevation is a view from the side of an object, when drawing interior elevations, this would represent one of the walls. This would include any windows or doors as well as any built-in furniture that is in direct contact with the wall. This is a section view.

What is the purpose of elevation?

An elevation drawing is an orthographic projection drawing that shows one side of the house. The purpose of an elevation drawing is to show the finished appearance of a given side of the house and furnish vertical height dimensions. Four elevations are customarily drawn, one for each side of the house.

What is elevation in house construction?

Elevation of a Building Definition of an Elevation – Architectural Terminology: A 2-dimensional representation of a building form as seen from the vertical orthographic plane. … Alternative meaning: The term elevation may be used to identify the height of a building or structure or land.

What are the main types of elevation?

Elevations depict how your home will look when viewed from specific angles. There are different types of elevation with respect to these specific angles. Front elevation, side elevations, rear elevations and split elevations are some types.

How do you do elevation?

An easy-to-remember equation for finding change in elevation as a decimal is “rise over run,” meaning the rise (the change in vertical distance) divided by the run (the change in horizontal distance). As an example, let’s say the rise is 2 and the run is 6. So, you’d take 2 over 6 (or 2/6) to get .

What is floor elevation?

Floor elevations show exactly how much higher or lower different sections of your floor are. This provides verifiable data to back up the visual signs that a home is experiencing movement.

Does elevation include furniture?

“An elevation is a view from the side of an object when drawing interior elevations; this would represent one of the walls. This would include any windows or doors as well as any built-in furniture that is in direct contact with the wall.”

How are elevations used in design?

As buildings are rarely simple rectangular shapes in plan, an elevation drawing is a first angle projection that shows all parts of the building as seen from a particular direction with the perspective flattened. … Simple elevation drawings might show: The outline of a building.

Article first time published on

What is elevation in architecture?

In architecture, an elevation is the front, back, or side of a building, or a drawing of one of these. … The elevation of a place is its height above sea level.

What does elevation view look like?

An Elevation is drawn from a vertical plane looking straight on to a building facade or interior surface. This is as if you directly in front of a building and looked straight at it. … Elevation drawings are orthographic projections. This means they are not drawn in perspective and there is no foreshortening.

What is South elevation?

We are South Elevation, a contemporary clothing brand in pre-launch mode for the plus size and curvy women. About us. Our Values. Three words define us: Sustainable, empowering & charitable.

How do you label elevation?

  1. Click Annotate tab Tools panel Annotation Tools.
  2. Select an elevation label tool. If necessary, scroll to display the tool that you want to use.
  3. Specify the insertion point of the elevation label. You can move or hide the Properties palette to expose more of the drawing area.
  4. Click OK.

How do I find the elevation of my house?

  1. Go to this U.S. Geological Survey website called the National Map Viewer.
  2. Enter an address or just zoom into the area of interest.
  3. Select a base map by clicking on the icon with the four squares that form another square. …
  4. Above the map area, click on the icon that shows an XY.

What are the four elevations?

Elevations are typically created from the four main faces of the building: front, rear, right, and left. These views are typically named north, south, east, and west referring to the general direction the building faces.

What is a rear elevation?

The ‘rear elevation’ is the elevation opposite the principal elevation. Side elevations link the principal and rear elevation.

What's the difference between section and elevation?

The difference between Interior Elevations and Sections is that Interior Elevations start at the finished floor elevation and stop at the ceiling. Interior Elevations show individual walls in specific rooms, whereas Sections cut through floors showing multiple rooms stacked on top of each other.

What scale should interior elevations be?

Generally, interior elevations are drawn to the same scale as the floor plan(s). If the wall plane and other items are fairly simple, then a scale of 1/4″ = 1′-0″ (1:50 metric) is acceptable.

What is top elevation?

(ĕl′ə-vā′shən) The vertical distance between a standard reference point, such as sea level, and the top of an object or point on the Earth, such as a mountain. The summit of Mount Everest is the highest elevation on Earth. The American Heritage® Student Science Dictionary, Second Edition.

What is PAD elevation?

Pad Elevation, Graded means the finished grade elevation of the building pad area for a residential or non-residential structure and does not include areas for parking, landscaping, or other non-building structure uses; Sample 1.

What is a floor elevation survey?

A floor elevation survey is a tool used to evaluate the performance of a building floor in service. A Zip level or manometer is generally used, that can measure differences in elevations between proximal points.

What is a low elevation?

literal meanings; being at or having a relatively small elevation or upward extension.

What is the difference between facade and elevation?

As nouns the difference between facade and elevation is that facade is (lb) the face of a building, especially the front view or elevation while elevation is elevation (height above something).